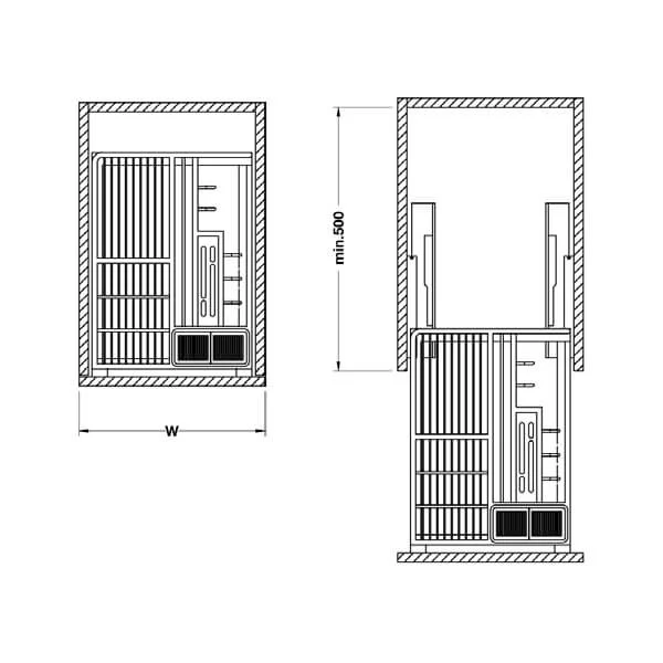
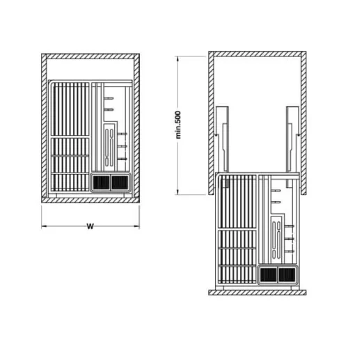
Thông số kĩ thuật của rổ gia vị 400mm ROME Hafele 549.34.055
- Chất liệu: khung bằng thép, rổ bằng inox 304
- Hoàn thiện: khung màu xám, rổ inox bóng
- Tải trọng: 20kg cho loại 400mm
- Phiên bản: gắn giữa, giảm chấn mở toàn phần
- Chiều sâu lọt lòng tủ tối thiểu: 500mm
- Trọn bộ gồm: 1 bộ ray trượt, 1 khung, 1 bộ rổ, 1 bộ chân đế, 1 khay nhựa, 1 bộ treo muỗng dĩa, 1 bộ để dao, 1 bộ ốc






Đánh giá
Chưa có đánh giá nào.