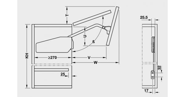
Thông số kỹ thuật bộ tay nâng Free Fold Short Hafele 493.05.901
- Chiều cao tủ: 840-910mm
- Trọng lượng cánh trước: 10-20 kg
- Chất liệu: phụ kiện: thép, nhựa; nắp đậy: nhựa
- Màu hoàn thiện: phụ kiện: mạ nicken, nắp đậy màu trắng
- Hỗ trợ điều chỉnh: khả năng điều chỉnh 3 chiều cho cánh tủ. Khả năng điều chỉnh lực nâng.
- Trọn bộ gồm:
- 1 cặp phụ kiện tay nâng Free Fold S (1 bên trái, 1 bên phải; bao gồm bas nối với cánh tủ, hướng dẫn lắp đặt và mẫu khoan bằng giấy)
- 1 cặp nắp đậy (2 cái, trái/ phải)
- 2 bản lề với đế
- 2 bản lề nối cánh






Máy giặt sấy độc lập Rosieres RILSW4117TAHBR-4
Bếp điện từ đôi Lorca TA 1006EC PLus
Vòi rửa bát Konox rút dây Ponte Nickel
Đánh giá
Chưa có đánh giá nào.