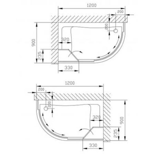
Với thiết kế cửa gạt (trượt) vô cùng tiện lợi giúp hạn chế tối đa không gian, cabin tắm Euroking EU-4449B kích thước 900 x 1.200 x 2.000 mm rất thích hợp cho những ai muốn trang bị vách kính nhà tắm nhưng lại sợ phòng tắm bị chật hẹp, tù túng.
Đặc điểm nổi bật
- Đế: Sản phẩm có đế. Chân đế được làm bằng 100%, đế được làm bằng nhựa Acrylic chống ố, chống bám bẩn. Bề mặt cảm quan bên ngoài được vo tròn theo đường chân kính, nhằm ngăn nước bắn ra ngoài và tăng vẻ đẹp thẩm mỹ chung.
- Cửa mở: Cửa mở với phong cách lùa (gạt) được làm bằng kính cường lực. Hạn chế việc bị đọng nước, rò rỉ nước ra bên ngoài. Thao tác mở cửa đơn giản: bạn chỉ cần dùng 2 bàn tay, nắm lên tay nắm cửa và đẩy (gạt) sang 2 bên. Thiết kế cửa thông minh vì sẽ làm hạn chế tối đa diện tích trong phòng (thay vì là thiết kế 2 cánh cửa đẩy ra như các loại cửa thông thường).
- Vách phòng: Được thiết kế bao phủ hoàn toàn bằng lớp kính cường lực cao cấp, có độ dày lên đến 6mm. Dưới các tác nhân bên ngoài: va đập, ánh nắng chiếu vào trực tiếp… thì lớp kính vẫn đảm bảo chắc chắn, không bị nứt vỡ. Vách kính phòng tắm với kích thước 900 x 1.200 x 2.000 mm: giúp cho người dùng thoải mái tắm gội trong một không gian thư giãn, rộng rãi nhất.
- Khung nẹp: Khung nẹp bằng hợp kim nhôm có tác dụng cố định, định hình sản phẩm. Chất liệu nhôm nguyên chất 100% không han gỉ, không bị biến chất biến màu khi vô tình tiếp xúc hóa chất (dầu gội, xà phòng…) giúp kéo dài tuổi thọ, độ thẩm mỹ bền bỉ theo thời gian.
- Khay kệ , giá treo khăn tắm: Kệ khay, giá treo khăn tắm được phủ lớp chống ăn mòn, được lắp đặt bên trong phòng. Một lớp kính cường lực được thiết kế như một cánh cửa đóng mở bảo vệ các dụng cụ, đồ dùng trên khay kệ. Dễ dàng đựng các vật dụng cá nhân như: sữa tắm, dầu gội, sữa dưỡng thể, tinh dầu, nến thơm, điện thoại để nghe nhạc…
Tính năng sản phẩm
- An toàn: Bề mặt kính cường lực cứng gấp 3 lần kính thường, không dễ dàng bị nứt vỡ khi vô tình va đập trúng. Kính cường lực chống bị trầy xước. Chịu nhiệt: mức độ chịu nhiệt ổn, dù lắp đặt ở vị trí gần ánh nắng chiếu vào nhưng cũng không bị hơi nóng đi vào. Chống ẩm: khi tắm xong hoặc khi trời lạnh, nhiệt độ thấp thì kính cũng không bị mờ, không cần mất thời gian để lau chùi hay vệ sinh kính.
- Tiện lợi: Các khay kệ, giá khung treo được thiết kế nhỏ gọn bên trong phòng tắm. Vừa thuận tiện cho người dùng vừa không làm gia tăng thêm diện tích.
- Dễ dàng vệ sinh lau chùi: Thân kính, khay và giá đồ, khung nhôm, tay cầm, đế nhựa PVC…đều làm bằng chất liệu tốt, dễ dàng vệ sinh. Đối với vết bẩn thông thường, bạn có thể dùng khăn sạch lau sơ qua; còn đối với những vết bẩn bám lâu, thoải mái sử dụng các chất tẩy rửa thông thường để vệ sinh phòng tắm mà không sợ bị ăn mòn hay biến màu như các loại phòng tắm thông thường. Đế phòng tắm vách kín được làm từ nhựa cao cấp nên có khả năng ngăn tích tụ nước, ố vàng gây mất thẩm mỹ, và thời gian bảo dưỡng của người sử dụng.
- Kiểu dáng hiện đại: Phần kính trong suốt nên dễ dàng phối cảnh với không gian nội thất xung quanh. Diện tích phòng nhỏ gọn giúp tiết kiệm diện tích mà không gây rối tầm nhìn. Đường nét thiết kế mềm mại không khô cứng.
Thông số kỹ thuật
| Tên sản phẩm | EU-4449B |
| Kích thước |
900 x 1.200 x 2.000 mm
|
| Công nghệ | Châu Âu |
| Chân đế | With Tray |
| Phụ kiện | Có |
| Thời gian bảo hành | 3 năm |
| Chất liệu | Acrylic, Kính cường lực |
| Kính cường lực | 6mm (kính trong suốt) |






Máy hút khói khử mùi áp tường MALLOCA DRIVE F-152W
Đánh giá
Chưa có đánh giá nào.