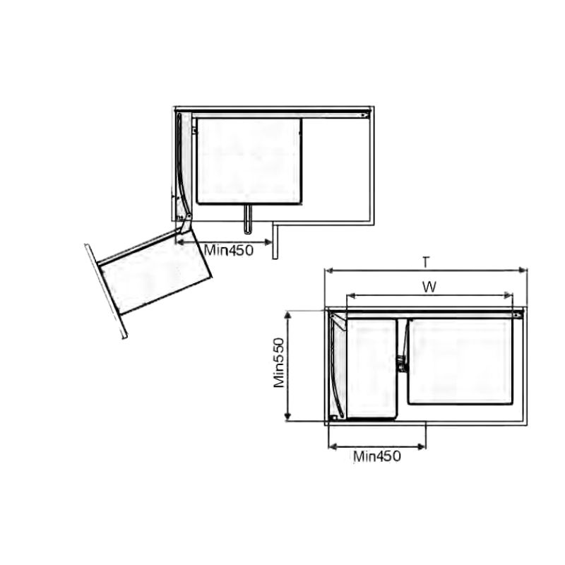
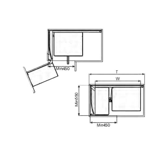
Đặc điểm nổi bật
- Thiết kế sang trọng, hiện đại: Kệ liên hoàn hộp EUM101 là sản phẩm cao cấp đến từ thương hiệu Eurogold, với thiết kế mang đậm phong cách châu Âu, bề mặt sáng sang trọng, mang vẻ đẹp hiện đại, tinh tế và góp phần nâng tầm không gian bếp. Bên cạnh đó, kệ được bắt trực tiếp vào cánh tủ, phù hợp với tất cả các loại gỗ tự nhiên và gỗ công nghiệp. Kệ liên hoàn hộp EUM101 được lắp âm tủ giúp tiết kiệm được tối đa diện tích và tận dụng được hết công năng của bộ tủ bếp
- Chất liệu cao cấp: Được sản xuất theo công nghệ hiện đại, trên dây chuyền tiên tiến, kệ có phần khung làm từ thép sơn tĩnh điện, rổ được làm từ inox mạ crom, có độ bền cao, chịu được trọng lực lớn, chống gỉ sét. Người dùng dễ dàng vệ sinh kệ nhanh chóng với một chiếc khăn ẩm.
- Lưu trữ thông minh: Với thiết kế thông minh, tạo sự tiện lợi tối ưu cho người dùng, giá liên hoàn hộp EUM101 có thiết kế 2 tầng với khả năng lưu trữ khá lớn, kệ được tính toán và thiết kế phù hợp với kích thước của các vật dụng, bạn thoải mái lưu trữ xoong nồi, chén bát, chai lọ gia vị, thực phẩm khô. Người dùng dễ dàng lấy được vật dụng, gia vị, thực phẩm khi cần sử dụng hay để vào khi đã dùng xong một cách nhanh chóng.
- Sử dụng dễ dàng: Khi cần lưu trữ vật dụng, gia vị, thực phẩm khô, người dùng chỉ việc cho vào các ngăn tương ứng của kệ. Khi mở cánh tủ, 2 khoang chứa được gắn với cánh tủ di chuyển theo giúp lấy đồ dễ dàng và tiện lợi hơn. Đồ đạc được sắp xếp gọn gàng, khoa học hơn
Thông số kỹ thuật
- Kích thước sản phẩm (R x S x C): (860-960) x 530 x 520 mm.
- Kích thước cánh: >= 450mm.
- Chiều rộng tủ: 900-1000 mm.
- Quy cách: mở trái.
- Chất liệu: Khung thép cao cấp + rổ hộp nhôm cao cấp.






Vòi rửa bát Kluger KLF0019C
Vòi rửa bát Kluger KLF0020S
Bếp từ 3 vùng nấu Hafele 536.61.791
Quạt điều hòa Boss S102
Máy lạnh LG Inverter 1 Hp IDC09M1
Hít để xà phòng, dao cạo Kit Plus 120
Tủ lạnh Hitachi Inverter 520 lít R-HW540RV X
Hệ thống lọc nước đầu nguồn AO Smith I97
Robot hút bụi lau nhà Roborock Qrevo
Máy rửa bát bán âm Bosch SMI6ZCS16E Serie 6
Hít để máy sấy tóc Kit Plus 510
Cây nước uống nóng lạnh Kitchenlux TY-LWYR87WC
Cây nước uống nóng lạnh SimpleHome TY-LYR47
Robot hút bụi lau nhà Roborock Qrevo Pro
Hít để chai lọ, giẻ rửa bát Kit Plus 006
Smart Tivi QLED Samsung 4K 55 Inch QA55Q60D
Nồi cơm điện Toshiba 1.8 lít RC-18JFM(H)VN
Lò vi sóng âm tủ BOSCH BFL7221B1
Smart Tivi 4K 65 inch Samsung UA65DU7700KXXV
Tủ Lạnh 2 cánh side by side Inverter 596 Lít Toshiba GR-RS775WI-PMV(06)-MG
Đánh giá
Chưa có đánh giá nào.